Bytový dům Františka Diviše

Architektura

M. Janota, J. Lorenc, D. Vokurka, M. Egly, P. Malinská

Lokalita

Praha Uhříněves

Investor

Vivus Uhříněves 7 s. r. o.
DI5 > Projekty > Bytový dům Františka Diviše

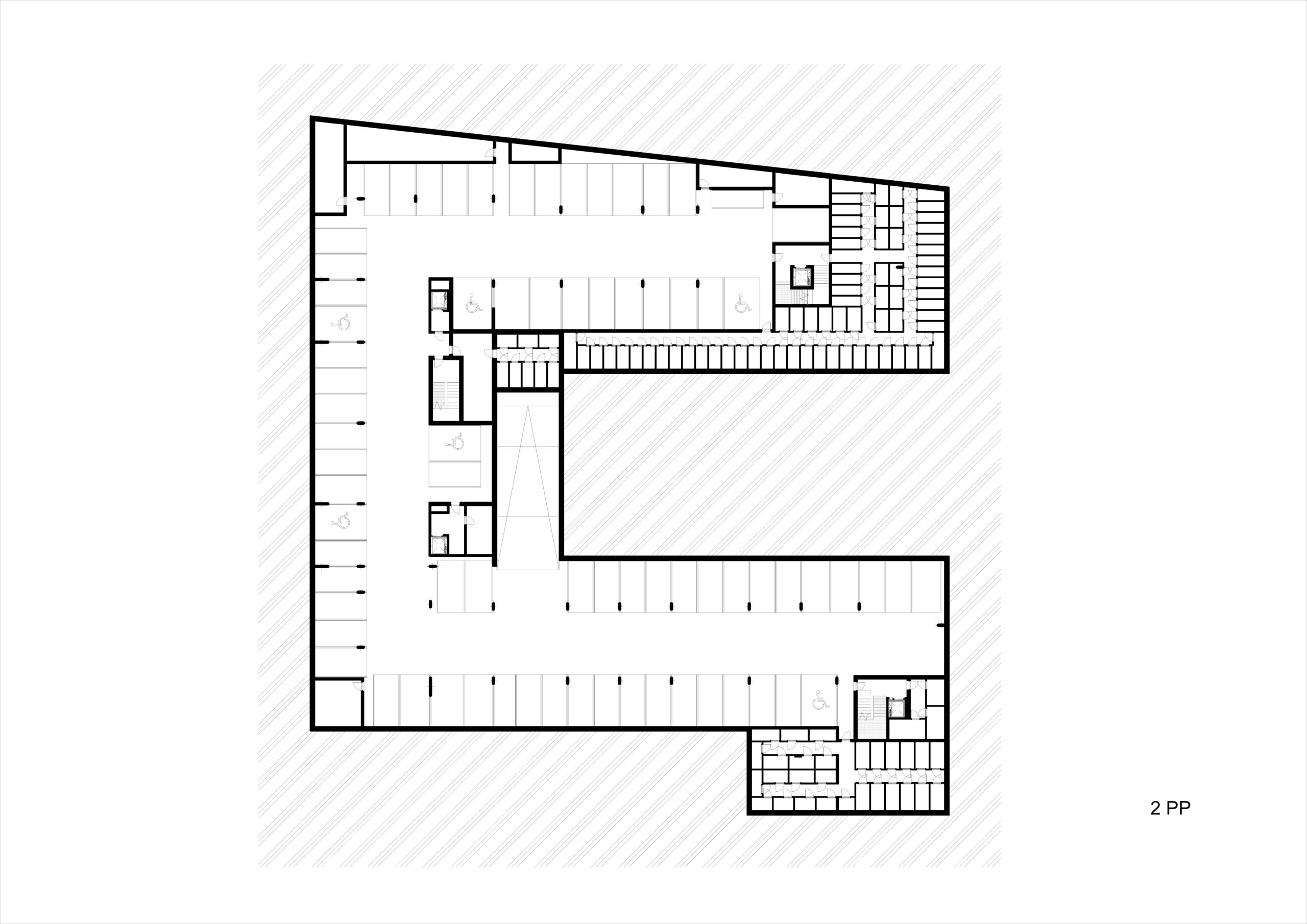
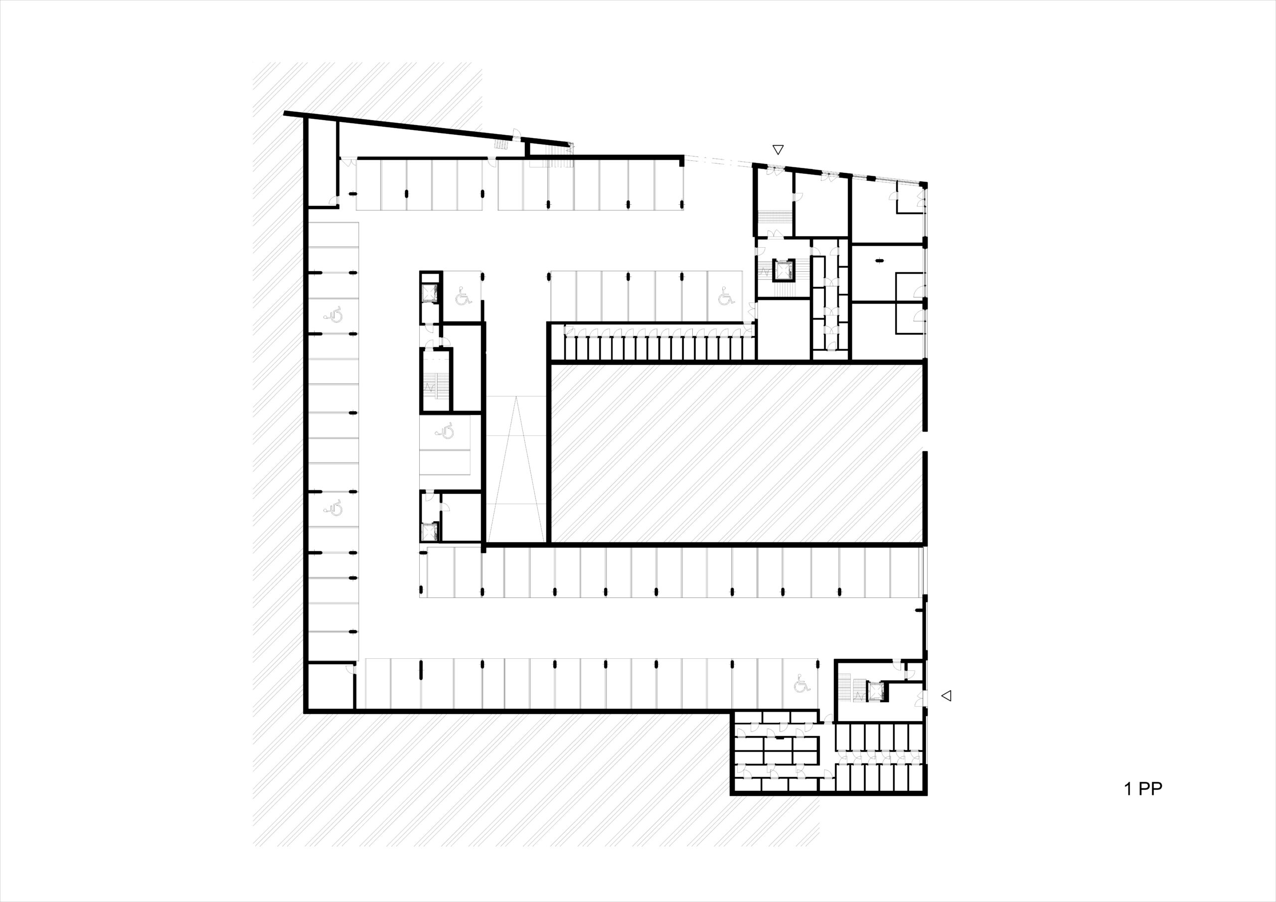
Architektonický návrh zástavby na pozemku bývalých stavebnin řeší skloubení bytové výstavby a optimálního propojení území. Vznikají 3 hmoty domu. Podlouhlý kvádrový objekt a dvě věže. Trojice hmot je seskupena kolem polosoukromého dvora, který je navržen jako přívětivý mikrosvět budoucích majitelů bytů, ale zároveň by měl umožňovat snadný pohyb a prostupnost územím. Do dvora jsou orientovány předzahrádky, ale je počítáno i s komunitními zákoutími například pro pikniky a grilování.

Nejvyšší dům (východní věž) je zamýšlen jako dominanta území. Bezprostředně navazuje na veřejný prostor náměstíčka, a proto jsou ve východním traktu orientovány obchodní plochy, jejichž přítomnost má potenciál věřený prostor oživit. Koncepčně lze blok rozdělit na „slupku“ fasád běžících po perimetru a na „dužinu“ fasád vnitřního dvora. Slupka má charakter racionálně rozmístěných okenních otvorů, v kombinaci s balkóny. Dužina pracuje s výrazovými prostředky, které vytvoří „měkčí“ domácké prostředí vnitrobloku: lodžie, popínavá zeleň, bohatší parter. Zároveň jsou fasády po perimetru i uvnitř bloku řešeny jinou barvou a strukturou omítky. Z hlediska náplně se jedná o domy s převážně obytnou funkcí. Návrh pracuje s byty nižšího prostorového standardu (startovní bydlení pro mladé rodiny). Bytová skladby předpokládá převahu jednotek 2+kk a 3+kk, doplněných o byty 1+kk a 4+kk. Ke všem bytům náleží terasa, balkon, lodžie nebo předzahrádka. Vzhledem k odlehlejší poloze od ulice Františka Diviše počítáme s umístěním pouze menšího počtu komerčních jednotek, se vstupy do veřejného prostoru při severovýchodní hraně bloku. Na střechách všech objektů uvažujeme s umístěním extenzivní zeleně, ve vnitrobloku je navržena kombinace zeleně intenzivní a zeleně na rostlém terénu. Ozelenění střech přispěje k příjemnějšímu mikroklimatu místa, hospodárnějšímu nakládání s dešťovými vodami.