Dostavba ZŠ Poříčany

Architektura

Michal Smilek, Tomáš Korb

Projekt

A. Bessergeneva, T. Korb, L. Jančarová, J. Lorenc, F. Hegner

Investor

Město Poříčany

Ocenění

4. místo v architektonické soutěži ČKA
DI5 > Projekty > Dostavba ZŠ Poříčany

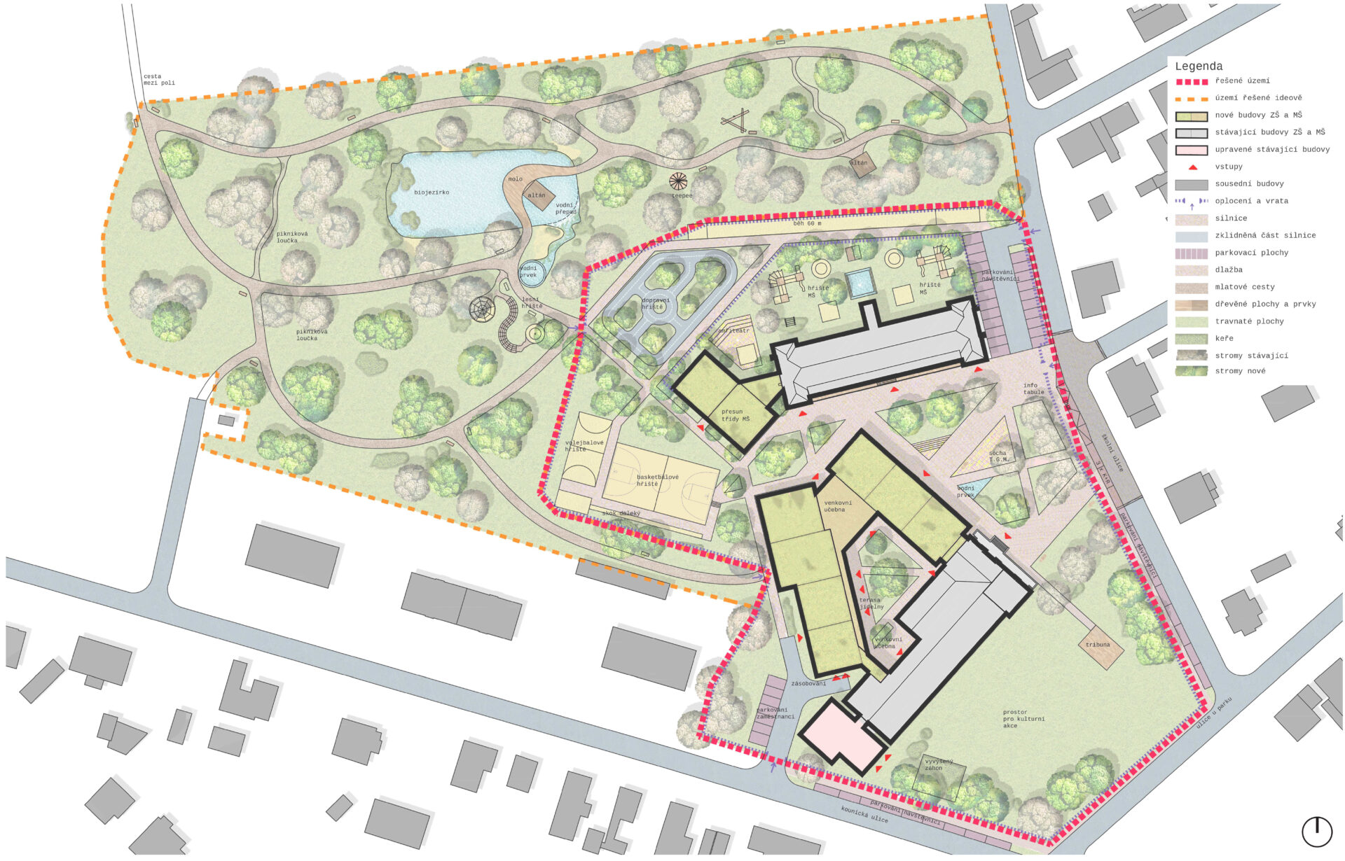
Školní areál je obklopen přírodou, což je považováno za jednoznačnou kvalitu. V návrhu necháváme zeleň více vstoupit do jednotlivých vnitřních prostor školy. Hlavním atributem stavby je vnitřní dvůr, který vytváří komunitní místo ke střetávání, hraní a výuce. Společný dvůr se stromem uprostřed evokuje „mateřskou náruč“. 

 

Navrhované urbanistické a architektonické řešení

Urbanistické řešení vychází z uspořádání stávajících budov a jejich vzájemného natočení. Hrana přední budovy a školky vymezuje náměstí, které slouží jako nástupní prostor do budov.
Dominantním materiálem celého návrhu je dřevo. V rámci povrchů fasád poměr dřevěných ploch vůči proskleným varíruje dle funkce a požadavku na osvětlení vnitřních prostor. Hluboké dřevěné rámy, které člení zasklené plochy mají i stínící funkci. Nové budovy svým měřítkem, šířkou a délkou navazují na stávající budovu školy, svou hmotou reagují na výběžky a ústupky hmot původní budovy. Tvarování střech společně s decentním svislým členěním fasád působí jako dynamický kontrast vůči statičnosti a horizontalitě stávajících budov.
Projekt počítá s ozeleněním vnitřních pobytových prostor, což odpovídá idee prostupu přírody do interiéru. Střechy budou opatřeny intenzivní zelení.