Svazková škola Zbuzany

Architektura

Jan Řeháček, Tomáš Korb, Martin Hybášek

Ocenění

Odměna v soutěži ČKA
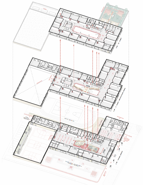
DI5 > Projekty > Svazková škola Zbuzany

Předmětem soutěže bylo zpracování architektonického návrhu novostavby svazkové základní školy s kapacitou 540 žáků ve dvou paralelních třídách, včetně venkovních zpevněných, sportovních a nezpevněných ploch, dopravní obslužnosti a napojení na technickou infrastrukturu. V rámci ideového zadání jsme rovněž prověřovali možnosti, jak naložit s navazujícími soukromými pozemky.

Porota na našem návrhu ocenila zejména:
• urbanistické řešení zohledňující prostupnost území
• pozici hlavního vstupu ve vztahu k centru obce a napojení na veškeré způsoby dopravy
• kompaktní hmotové řešení
• uměřené řešení fasád z hlediska použitých materiálů a míry prosklení

Koncepčně je areál navržen tak, aby veškeré hmoty školní budovy zůstaly soustředěny v západním sektoru pozemku a elegantně se vyhnuly zúžené části, která je vymezena dvěma proti sobě orientovanými trojúhelníkovými parcelami, jež nejsou ve vlastnictví školy. Tímto jasným uspořádáním vzniká na jedné straně kompaktní plocha určená pro samotnou školní budovu a navazující funkční celky sportovišť a hřiště, zatímco na straně východní se otevírá velkorysý prostor pro školní nádvoří, který zároveň slouží jako přirozený veřejný předprostor.

Architektonický návrh nové školní budovy je utvářen jako tři na sebe navazující objemy komponované do pravého úhlu – v těžišti stojí hlavní budova školy, k níž se ze západní strany napojuje tělocvična a z východní strany jídelna, čímž vznikají přirozeně vymezená nádvoří pro sport, pobyt dětí i společenské aktivity obce. Provozně je škola navržena jako centrální pětitraktová budova s otevřeným atriem a hlavním schodištěm jako orientační páteří, přičemž první nadzemní podlaží slouží školní družině a odpoledním aktivitám, druhé je určeno prvnímu stupni a třetí druhému stupni. Konstrukčně je budova řešena jako kombinace železobetonového skeletu a stěnového systému s obvodovým pláštěm tvořeným zděnou stavbou s kontaktním zateplovacím systémem a cihlovým obkladem. Krajinářské řešení vytváří reprezentativní náměstíčko před hlavním vstupem s rastrem stínících stromů, doplněné o nízkoúdržbové travnaté porosty a trvalkové záhony podporující retenci dešťové vody. Dopravně je budova obsloužena ze tří stran – východní zóna krátkodobého stání pro rodiče, jižní strana s autobusovou zastávkou a západní strana se samostatným přístupem k tělocvičně a parkovacími stáními pro návštěvníky i zaměstnance.